Строительные материалы напрямую от производителя
Позвоните сейчас!
Статьи `Советы от прораба` в ТомскеСтатьи `Советы от прораба` в Томске
гараж
бассейн
второй свет
дом на две семьи
терраса
балкон
+баня
объект:
материал:
площадь:
этажность:
Данный проект является вариантом Б-88: Исходный проект Б-88
Дома из бруса >

Проект гостевого дома из бруса Б103-88


Проект гостевого дома из бруса.

Проект разработан в 2016 г. для строительства в Кемеровской области.


Характеристики



Общая площадь 103.16 м², этажей 2.

Есть фото построенного объекта (дом) по проекту, смотрите ссылку:

Б103-88



Высота первого этажа 
2700 мм
Высота второго этажа 
2600 мм
Фундамент 
ленточный
Межэтажные перекрытия 
деревянные балки
Стены дома 
брус естественной влажности 150 × 150 мм
Отделка наружных стен 
тонировка
Кровля 
металлочерепица
Отопление 
отопительный котёл любого типа
Окна, двери 
индивидуальные
Габариты 
11.0 × 7.5 м

Проект можно адаптировать (переделать) под любой строительный материал.



Справочная информация



Обратите внимание, что дом по проекту построен. Внимательно посмотрите на фотографии и запомните, как должен выглядеть первоначальный черновой вариант дома и обычного бруса на участке. Перед нами законсервированный объект на время технической усадки стен. Возводим фундамент, стены и крышу, с обязательным покрытием кровельным материалом, потому что стены должны сохнуть, а не мокнуть. Последний штрих – закрываем окна, закрепляем ограждающий материал и уходим минимум на шесть-семь месяцев.
Передний фасад гостевого дома из бруса по проекту Б103-88.
Вид слева на гостевой дом из бруса по проекту Б103-88.
Задний фасад гостевого брусового дома по проекту Б103-88.
Вид справа на гостевой брусовой дом, проект Б103-88.


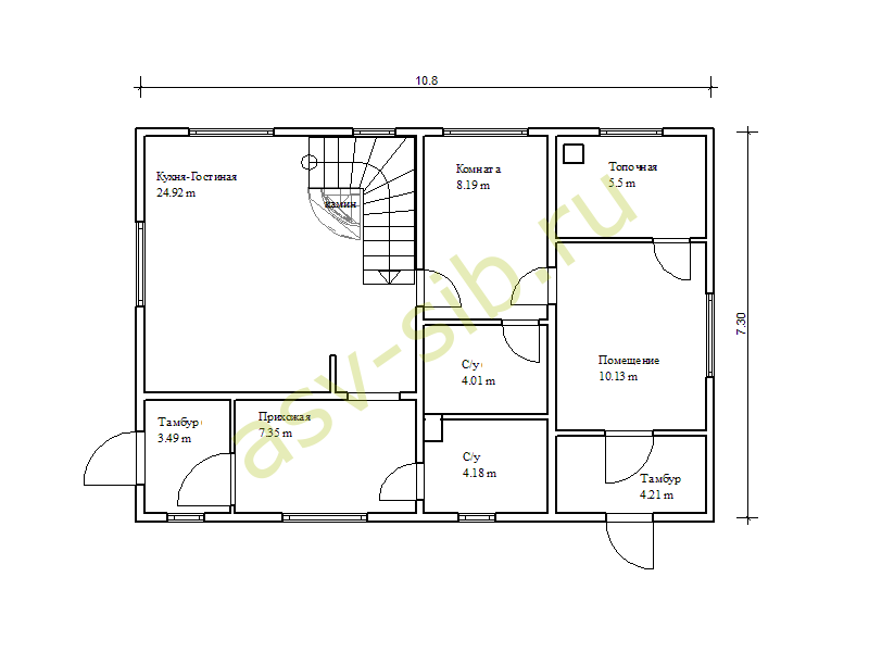
Планировка



Логистика помещений неплохая, только минусом можно обозначить проходную комнату отдыха на первом этаже. В одной из модификаций подобного рода проектов можно увидеть гараж, на месте технических помещений.


Планировка гостевого дом из бруса по проекту Б103-88, первый этаж
План второго этажа гостевого брусового дома, проект Б103-88.


Стены



Отметим ещё один момент по проекту гостевого дома из бруса Б103-88: оцените толщину бруса на несущие стены, она 150 мм, минимальное сечение по несущей способности. Это говорит о том, что хозяин решил сократить расходы на брус, который будет закрывать обшивочными материалами с утеплителем. Подобная технология используется при минимальных финансовых возможностях на начальном этапе и позволяет растянуть вложения средств по времени. Также рассматривается из чисто практических соображений. Например, обычный брус в любом случае надо обшивать защитным слоем, поэтому толщина его не важна в этом случае, а 15 сантиметров достаточно по несущей способности. Следовательно, берём минимальную толщину, тратим минимум сегодня, а дополнительные расходы на утеплитель только через год. Это финансовый манёвр.

В качестве утеплителя на брусовых домах применяется рулонный или плитный, очень редко сыпучий. Толщина слоя обычно десять-пятнадцать сантиметров. Наружный слой сайдинг или панели, обшивочную доску стали применять редко.


Крыша



Крыша в доме двускатная мансардная утеплённая, над техническими помещениями кровля примыкает к несущей стене дома, перекрытие чердачного помещения утеплено.


Комментарии к проекту гостевого дома из бруса Б103-88



Оценка однозначно положительная. Хозяин рачительный, думающий. В проект можно вводить любые новые помещения, комбинировать варианты, при этом оставаться в заданных габаритах, что характеризует работу, как востребованную в будущем.

К проекту можно рассмотреть любые материалы, но при сохранении неизменного вида заменить можно только брус на брус, следовательно, обычный брус можно заменить профилированным брусом из массива или клеёным профилированным брусом.


Успехов и хорошего дня!